iQ Power Tools
Perris, CA
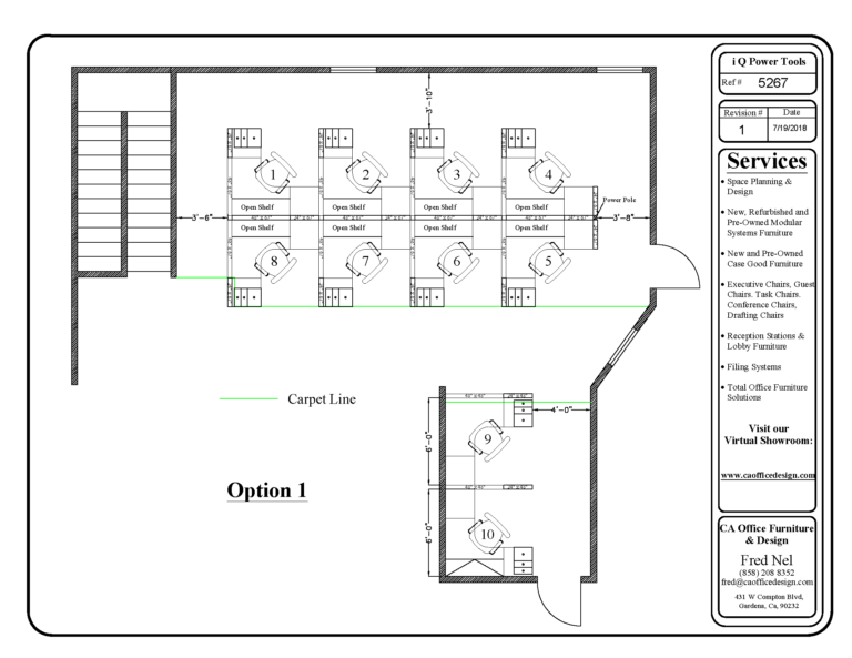
Customer had a time constraint and asked us to design and install office workstations for a new space in their offices in Perris, CA – all within less than 10 days. We successfully completed the office design project within the timeframe set by the customer.
We also supplied the following office furniture products:
- Refurbished Herman Miller Action Office Cubicles
- BBF Pedestal Storage Units
- FF Pedestal Storage Units
- Overhead Storage Units
- Open Shelves























